SL125推拉门+栏杆
可定制搭配

SL125系列滑动门

轻奢生活,重型推拉门产品。
适用于超大墙口的封闭需要,单体别墅整体极简风格设计。
产品介绍
性能参数
   最大高度                         5500mm
   最大宽度                         4000mm
   最大重量                         800kg
   隔热条规格                      53mm
   最大玻璃尺寸                   12
   玻璃规格                         38mm

   型材视面                         20mm

   最大固定槽口宽度             50mm

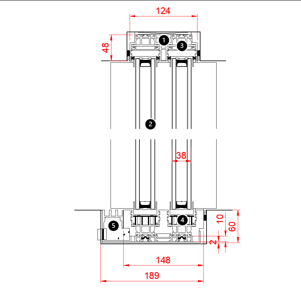
平面、立体解析图
SL125滑轨系统适用于外部大型墙洞使用,本产品拥有着优良的隔热和隔音效果,大面积的玻璃和多滑轨系统可以极大的提高透光性。
本产品在SL125系统原基础上添加了隐藏功能,将轨道完美的隐藏起来,从而让视野达到更加整洁的效果。
SL125系列产品可以搭载自动化功能,可应用于角落无柱、墙内隐藏等装修方式,同时可搭载内部蚊帐和外部百叶窗,功能齐全,可满足各大客户要求。
轨道展示
滑轨
隐藏滑轨
地面方式
可适配不同地面环境
自动门锁展示
人脸刷卡     刷卡密码      人脸密码        单独刷卡        单独人脸         墙控      遥控

SL125系列自动门系统拥有面部识别、指纹解锁和遥控解锁三种开门方式,门内自带防夹系统,让门窗进入互联网时代,


网络的配置也可选择有线连接,也可配置wifi,并且可以将设备接入云服务,通过移动客户端对设别进行操作。


自动门的智能识别功能非常强大,视频和照片都将拒之门外,无论是公司考勤,还是家装,都是智能、美观与安全一体的优质选择

L型锁展示

SL125系列L型锁装置多点锁闭系统提供了强力的防盗防护功能。

该系统可以安装一个集成的开启和锁定监控,并连接到外部监控系统。

根据系统配置,可使用隐蔽式电气驱动器来提高操作舒适性。

开启方式
SL125推拉系统>3轨
                 multiple sliding                    fixed + double sliding                                                                   multiple pocket                                   multiple sliding(inverted central opening)
              fixed+ multiple sliding+ fixed(central opening)                    multiple sliding corner (out)                                  fixed + multiple sliding corner + fixed (in) 
SL125推拉系统>4轨
                                 fixed + multiple sliding                                                                       multiple sliding                                                                            fixed + multiple sliding + fixed (central opening)
技术信息
SL125系列
性能

通透性

Transparency

up to 98%

节能指标

Thermal coeffcient

Uw=1.2W/.K(Ug=0.7W/.K)

安全性

Security

RC2 /WK2

隔音性

Sound insulation

37db

水密性

Water tightness

Class 9A

气密性

Air tightness

Class 4

抗风压

Wind resistance

Class C5
简约的栏杆玻璃造型适配现代、轻奢、极简等多种装修风格,不挑空间调性。栏杆设计能有效防坠落、防碰撞,尤其适合有孩童的家庭或高层住宅,
SL125推拉门+折叠纱门
推拉门负责隔断、保温、透采光,折叠纱门开启时能防蚊通风,可嵌入墙体隐藏,与推拉门搭配时视觉上更显利落,不额外增加空间杂乱感,适配现代、极简等多种装修风格,让空间整体感更强。
SL125推拉门+推拉纱门
推拉门与推拉纱门同沿轨道平移开启,无需适应不同开启方式,老人、孩童都能轻松操作,日常开关流畅不费力,可搭配同色系、同风格的门体与纱网,轨道对齐不杂乱,适配现代、极简等装修风格,不破坏空间整体美感。